ORDERING 20 OR MORE? USE CODE “BULKWALLPADS” AT CHECKOUT TO RECEIVE 10% off STANDARD EASY STICK OR WOOD BACKED WALL PADS OFFER VALID ONLINE ONLY
 This item is estimated to leave our facilities in 3-5 weeks  from date of purchase
*This item looks great with a digitally printed logo call us for inquiries Â
Request a Quote.
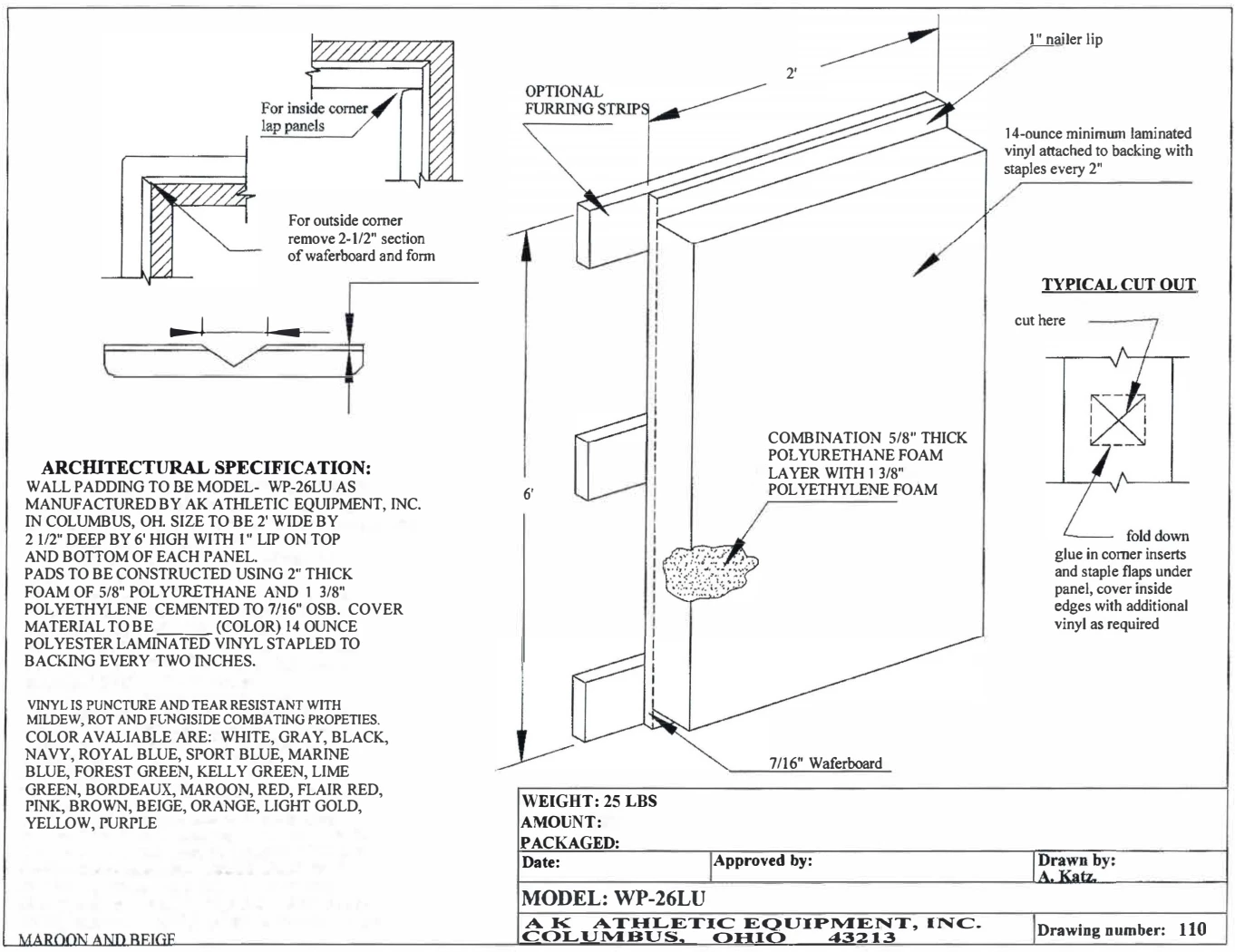
This is a standard wood backed wall pad – 2″ thick foam, 2′ wide x 6′ tall.
Â
AK Athletic Equipment has manufactured wall padding for over 25 years. Our wall padding is in gyms, homes, martial arts schools, hospitals, daycares and quiet rooms nationwide.Â
Each wall pad is made from high quality Class A fire rated 14 oz vinyl, 2″ of shock absorbent 3.7 LB polyurethane foam and a 7/16″ wood backer. Nailing lips are located on the top and bottom of each wall padding panel for easy screw-in attachment. For quick wall padding instructions see our tutorial here.
6 feet is the most popular wall padding height and are suitable for all age groups. Gym wall padding panels can easily be made to your exact specifications upon request, and we will work with you to ensure that your space looks great and obtains optimum safety for wall collisions.Â
Electrical outlets, poles, columns, corners, doors and windows and light switches are all obstacles that we can help with. Padding can be fabricated with cutouts made in our factory or if a DIY approach is an option we have inserts to make the process quick and functional.
Architectural specifications, shop drawings, and fire rated neoprene foam available if needed. Two side corner pads and three side column pads are manufactured to the customers specification.
We Accept School Purchase Orders, FAX: 614-920-3233
*This item is non refundable and is not eligible for returns
If your wall has outlets, light switches, or other obstacles we have cut-out inserts to insure you have a professionally finished padded wall. Please call or email for details
Â
Product size: 1 pad = 72″x24″x2″ 23lbs
Packaged size: 1 pad = 73″x25″x3″Â 28lbs












































































Reviews
There are no reviews yet.